Call First National Real Estate Tamworth on (02) 67666122
Lot 4 in Strata Plan 31141
Here’s an exciting unit in great over all condition right in the heart of East Tamworth.
Currently leased until January 2020 as fully furnished accommodation at $380 per week. The sale includes all the furniture, chattels and fixtures.
Within just moments from all the action of the CBD this single level first floor unit has a great outlook, privacy & views.
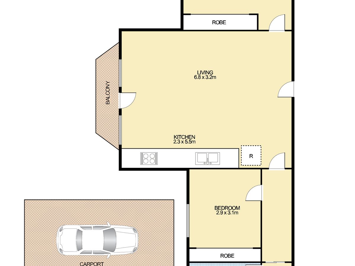
Fast Facts:
• 2 Bedrooms both with robes
• Main bedroom has own balcony
• Large open plan living opening to another balcony
• Modern kitchen with electric cooking, dishwasher and range hood
• Combined bathroom and laundry
• 2nd Access/exit at back door
• Single undercover vehicle space
• Rendered double brick internal and external walls
This strata scheme has 6 lots in the complex.
Strata Admin fees $1,702 Paid quarterly $425
Strata Capital Works fees $2,968 Paid Quarterly $742
Council rates are approx. $1,893
Council water rates are paid by strata
Contact:
Margo Taggart 0427-167 282 Principal
David Doherty 0417-288 545 Principal
Brooke Phillis 0432-561 719 Licensed Agent
Disclaimer: We have not verified whether or not that the information in this advertisement is accurate and we do not have any belief one way or the other of its accuracy. All purchasers must rely completely upon their own inquiries before purchasing.
First National Real Estate Tamworth is
Tamworth furnished accommodation; strata management agents in Tamworth; residential sales in Tamworth; property management agents in Tamworth; rural sales agents in Tamworth; and licensed auctioneers.
Features
Floor Plan
Floorplan 1

Virtual Tour

Margo Taggart
Principal
Margo’s enthusiasm and drive for real estate in Tamworth stretches back to 1997 when she started her career in the industry. Today, Margo is the co-principal of First National Real Estate Tamworth and a fully qualified licensed estate agent, buyer’s agent, and strata agent. Margo’s commitment to the success of every customer transaction, shine's through whether you are a tenant, landlord, buyer, or home seller. With Margo you are guaranteed good solid solution based advice, respect...

David Doherty
Principal / Licensee-In-Charge Auctioneer / Strata
Born & bred in Tamworth, David offers a wealth of experience with local knowledge in and has been listing & selling in Tamworth since 1990. David delivers on professional service and ensuring his seller(s) get the best possible sale price… everytime! Together with Co-Principal Margo Taggart, David & Margo have enjoyed running a competitive & successful agency office since 2006. Within the First National Network, David holds a swag of awards for highest sales achievement and is proud ...