All of our properties are open for inspection… by appointment.
Call First National Real Estate Tamworth on (02) 67666122
Lot 101 Deposited Plan 626017
Only 15kms to the CBD, this delightful 30 acre property has so much going for it, and is all yours enjoy and treasure.
With the future upgrade of the Tamworth Regional Airport becoming an International Freight destination and the Freight Internode Railway Hub, this makes this acreage opportunity a golden nugget for the making and the taking.
With some recent rains, this property is flourishing.
Features:
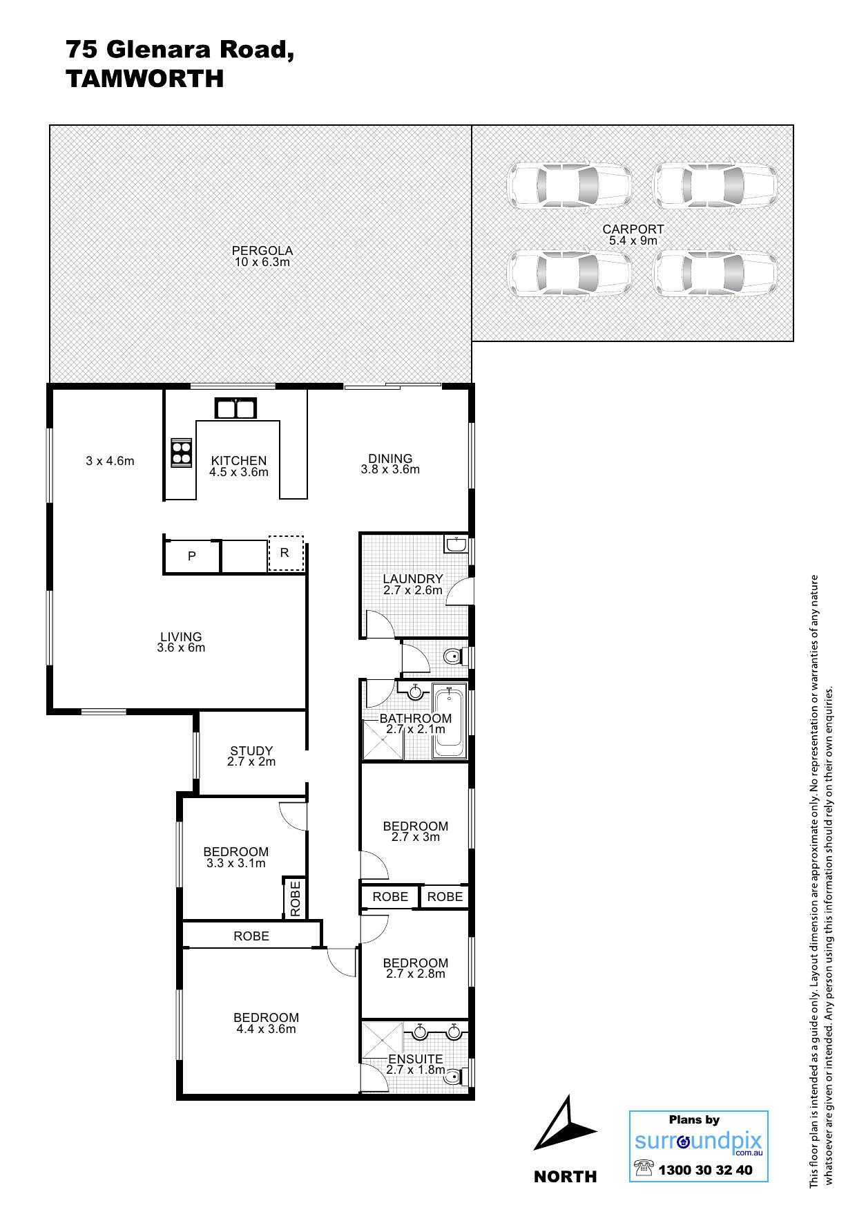
• Genuine 4 bedroom single level country family home
• Ensuite to main bedroom & family bathroom
• Has a dedicated office home
• The polished timber floors throughout look amazing
• 2 x 5,000 gallon rain water tanks
• Home runs on 100% rain water
• Submersible pump to bore at windmill
• Water to 3 paddocks - 6 paddocks plus large house yard
• A water softener is connected to the bore water as back up
• Single dam
• Numerous shedding ideal for storage and 2 bay stable with power and water connected
• Extensive rear covered entertainment area
• Metal yards included (metal ramp not included)
Contact:
Margo Taggart 0427-167 282 Principal
David Doherty 0417-288 545 Principal
Brooke Phillis 0432-561 719 Licensed Agent
Disclaimer: We have not verified whether or not that the information in this advertisement is accurate and we do not have any belief one way or the other of its accuracy. All purchasers must rely completely upon their own inquiries before purchasing.
First National Real Estate Tamworth is
Tamworth furnished accommodation; strata management agents in Tamworth; residential sales in Tamworth; property management agents in Tamworth; rural sales agents in Tamworth; and licensed auctioneers.
Features
Floor Plan
Floorplan 1
Virtual Tour
David Doherty
Principal / Licensee-In-Charge Auctioneer / Strata
Born & bred in Tamworth, David offers a wealth of experience with local knowledge in and has been listing & selling in Tamworth since 1990. David delivers on professional service and ensuring his seller(s) get the best possible sale price… everytime! Together with Co-Principal Margo Taggart, David & Margo have enjoyed running a competitive & successful agency office since 2006. Within the First National Network, David holds a swag of awards for highest sales achievement and is proud ...
Margo Taggart
Principal
Margo’s enthusiasm and drive for real estate in Tamworth stretches back to 1997 when she started her career in the industry. Today, Margo is the co-principal of First National Real Estate Tamworth and a fully qualified licensed estate agent, buyer’s agent, and strata agent. Margo’s commitment to the success of every customer transaction, shine's through whether you are a tenant, landlord, buyer, or home seller. With Margo you are guaranteed good solid solution based advice, respect...




















