All of our properties are open for inspection by appointment.
Call First National Real Estate Tamworth on (02) 67666122
AUCTION
On-Site Friday 12th May, 2017 @ 5pm
PRE-SALE BUILDING & PEST REPORTS AVAILABLE
Beautifully balance between what was, and what is, this is a fine example of immaculate presentation throughout, this modern-day family home is truly a delight to inspect.
First impressions are everlasting. You will love the fresh, light & bright welcoming.
Features:
Prestige address in sought after location
Easy walking to your choice of preferred schooling
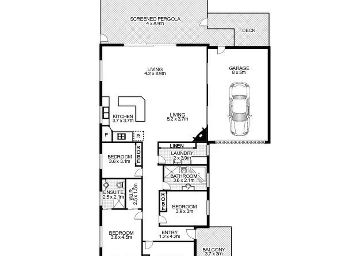
4 Bedrooms all with built in robes
Main bedroom has parents retreat, walk in robe and ensuite
Stylish open plan living area
Full length rear gauzed entertainment and added living area that allows you to enjoy view the pool and back yard
Timber fire & under-floor heating for warm winter comfort
Spacious garage width with work bench and space
Ducted evaporative cooling for our dry summer months
Free standing pergola area next to pool
Established meticulous landscaping
Magnesium swimming pool with own secure yard
803 Sqr mtr block
Contact:
Margo Taggart 0427-167 282 Principle
David Doherty 0417-288 545 Principle
Brooke Phillis 0432-561 719 Licensed Agent
Disclaimer: We have not verified whether or not that the information in this advertisement is accurate and we do not have any belief one way or the other of its accuracy. All purchasers must rely completely upon their own inquiries before purchasing.
First National Real Estate Tamworth is TAMWORTH FURNISHED ACCOMMODATION
Features
Floor Plan
Floorplan 1













